Indukční varná deska s odsáváním Siemens ED811BS16E
Katalogové číslo: 307032
Přidat do porovnání
![]()
468 008 989 (po-pá: 8-17 hod)Napište nám svůj dotaz
Podobné kategorie

Potřebujete poradit s výběrem?
Zeptejte se co vás zajímá468 008 989 (po-pá: 8-17 hod)Napište nám svůj dotaz

Doprava zdarmaNyní již při nákupu nad 2 000 kč*

Dodání do druhého dnepokud je dostupnost Ihned k expedici

let na trhuMáme zkušenosti a historii

Odborné poradenstvíNechte si poradit od specialistů
Popis produktu
combiZone umožňuje vaření ve velkých hrncích a pekáčích.touchControl - nastavení varných zón a ostatních funkcí pohým dotykem.
Kombinace inductionAir Plus zaručuje minimální hluk bez snížení
Snadné čištění – minimální nároky na čištění integrovaného odsavače par.
powerBoost - zvyšuje výkon indukční varné zóny až o 50 %.
Barva spotřebiče
Černá
Šířka
80 cm
Rozměry varných zón
1 x (38,0 x 21,0 cm ), 1 x 18,0 cm Ø, 1 x 21,0 cm Ø
Výkon varných zón
1 x 1.8 (3.1) kW, 3 x 2.2 (3.7) kW
Typ rámečku
design bez rámečku
Počet varných zón s topnou spirálou
0
Počet indukčních varných zón
4
Funkce Boost
všechny
Ovládání
vpředu
Max. výkon ventilátoru - provoz odvětrávání
500 m³/h
Výkon ventilátoru při intenzivním stupni - provoz odvětrávání
622 m³/h
Max. výkon ventilátoru - provoz s cirkulací vzduchu
441 m³/h
Výkon ventilátoru při intenzivním stupni - provoz s cirkulací vzduchu
595.0 m³/h
Sound power at max. speed (2010/30/EC)
69 dB
Sound power boost (2010/30/EC)
74 dB
Noise level
69
Spotřeba energie na varné desky
178.3
Dodávané příslušenství
1 x Clean Air Plus pach filtr
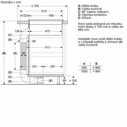
Rozměry spotřebiče
223 x 802 x 522 mm
Min.výška niky
490 mm
Max. výška niky
490 mm
Minimální šířka niky
750 mm
Maximální šířka niky
750 mm
Hloubka niky
223 mm
Appliance height above the worktop
6.0 mm
příkon
7400 W
Nominální výkon
220-240/380-415 V
Délka přívodního kabelu
110.0 cm
Typ zástrčky
bez zástrčky
Typ ovládání
TouchControl +/- (EasyTouch)
Stupně řízení varných zón
17 stupňů 1, 1., 2..9
Flexibilita varných zón
kombinovatelná varná zóna
powerBoost
Ano
activeLight
Ne
fryingSensor
Ne
cookingSensor Plus
Ne
cookingSensor Plus ready: možnost dovybavit speciálním teplotním senzorem, který zajistí precizní řízení teploty během procesu vaření v pěti teplotních úrovních
Ne
powerMove
Ne
Funkce přenosu nastavení
Ne
Quick start
Ano
Funkce udržování tepla
Ne
iQdrive
Ano
Intenzivní stupeň
Ano
Možnost odloženého vypnutí
30R_12E min
Regulace výkonových stupňů
3 stupně + intenzivní
GPSR - Odpovědná osoba
Siemens, s.r.o., siemens.cz@siemens.com, 800909090, Siemensova 1, Praha 13 - Stodůlky 155 00, Česká republika








